装饰设计
90平方米制造出4房2厅 “抢”出来的大空间
.
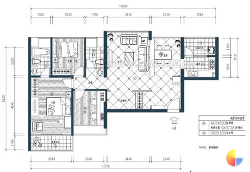
业主感言:能在建筑面积90平方米的空间里制造出四房两厅,一来因为发展商送了一点花园面积,二是因为设计师在设计上“抢”出了很多空间。完成后,屋子总体布局如下:四房(主卧\次卧\书房\多功能客房);两厅(客厅\餐厅);一厨;两卫(主卫\公卫);一鞋帽间;一入户花园;两阳台(生活阳台\观景阳台)。
原始结构
改造后
.
业主感言:能在建筑面积90平方米的空间里制造出四房两厅,一来因为发展商送了一点花园面积,二是因为设计师在设计上“抢”出了很多空间。完成后,屋子总体布局如下:四房(主卧\次卧\书房\多功能客房);两厅(客厅\餐厅);一厨;两卫(主卫\公卫);一鞋帽间;一入户花园;两阳台(生活阳台\观景阳台)。
原始结构
改造后
.
设计构想草图
.
进门原始状态
开敞的大拱门挖出来了
粗糙的红砖墙
.
连续的几个拱
.
看这面墙,有点剥落的沧桑感了吧
换个角度看看
.
楼兰的地砖
砖砌的小洗手台
书房,不要嫌难打理啊,其实是免打理
.
进门隔断:一棵树
与地面砖接触底部,师傅刷了一层清漆,以免日后打扫的时候进水受潮
木工师傅在修边
.
客厅与杂物间的一面墙,已刷了底漆
作旧的房门
.
一个有情趣的家是要主人自己动手做点东西的
另一间屋子的花纹
.
还有一面墙被强行涂鸦
.


.
木格子小天花
.
师傅和他的作品,似乎很深感情
.
进门树形玄关,把室外野趣大胆引入室内,实际上还是保留了入户花园的功能。
进门白色百叶窗鞋柜,美观透气。上面的挂衣架,看多实用。旁边是多功能衣柜,放些平时常用的外套拖鞋之类!小帘子一拉,里面再乱啥都看不到!
改造入户花园,增加划分餐厅和鞋帽间区域
.



.
推倒原来客厅背后一大半墙体,连续的几个大拱门,豁然开朗。客厅、餐厅、入户花园、鞋帽间浑然一体,没有这扇墙阻隔视线,视觉空间比原来放大了.
.
加宽走廊宽度,是放大空间的一种延续手段。把公共卫生间的墙向里推进并进行分区,洗手台是独立出来的,洗手如厕互不干扰,功能和美观都照顾到了

.

.
餐厅

.
厨房
.
书房


.
主卧
.
次卧 
































































上一篇:客厅茶几打破单调
相关文章
发布评论