地中海风格
作品风格展播篇---地中海风情【设计师:许明明】
项目名称】:地中海风情之悠悠小屋【空间性质】:家居空间【项目地址】:海南三亚【完成时间】:2009【主要材料】:混油、玻璃、装饰画、铝塑板、窗帘、布艺。。。【设计公司】:北京风尚印象装饰有限责任公司海南三亚分公司【设计师 】:主笔:许明明【设计理念】:“地中海风格”的建筑特色是,拱门与半拱门、马蹄状的门窗。建筑中的圆形拱门及回廊通常采用数个连接或以垂直交接的方式,在走动观赏中,出现延伸般的透视感。 蓝与白:这是比较典型的地中海颜色搭配。西班牙、摩洛哥海岸延伸到地中海的东岸希腊。希腊的白色村庄与沙滩和碧海、蓝天连成一片,甚至门框、窗户、椅面都是蓝与白的配色,加上混着贝壳、细沙的墙面、小鹅卵石地、拼贴马赛克、金银铁的金属器皿,将蓝与白不同程度的对比与组合发挥到极致,地中海风情也由此逐渐延展开来。。。。 楼下的游泳池(你站在桥上看风景,看风景的人在楼上看你,.....)
楼下的游泳池(你站在桥上看风景,看风景的人在楼上看你,.....) 原始平面图
原始平面图                                                  
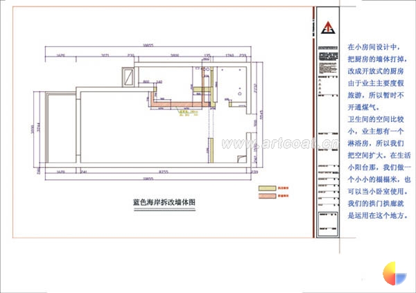
                         墙体拆改图
墙体拆改图 平面布置图
平面布置图  
                         立面图
立面图 蓝色拱形门
蓝色拱形门  
                         拱形门
拱形门 门厅
门厅  
                         地中海,防天然材质的墙砖与蓝色沙发完美的结合,在这个小小空间里体现出了地中海风格的特点
地中海,防天然材质的墙砖与蓝色沙发完美的结合,在这个小小空间里体现出了地中海风格的特点 干净明快的背景
干净明快的背景
         楼下的游泳池(你站在桥上看风景,看风景的人在楼上看你,.....)
楼下的游泳池(你站在桥上看风景,看风景的人在楼上看你,.....) 原始平面图
原始平面图                                                  
                         墙体拆改图
墙体拆改图 平面布置图
平面布置图  
                         立面图
立面图 蓝色拱形门
蓝色拱形门  
                         拱形门
拱形门 门厅
门厅  
                         地中海,防天然材质的墙砖与蓝色沙发完美的结合,在这个小小空间里体现出了地中海风格的特点
地中海,防天然材质的墙砖与蓝色沙发完美的结合,在这个小小空间里体现出了地中海风格的特点 干净明快的背景
干净明快的背景相关文章
发布评论
 
  已有
已有 杭州湖州绍兴马莱
杭州湖州绍兴马莱 巴洛克风格餐厅
巴洛克风格餐厅 马来漆工程097
马来漆工程097 马来漆工程095
马来漆工程095 马来漆工程094
马来漆工程094 马来漆工程086
马来漆工程086 马来漆工程082
马来漆工程082 马来漆工程078
马来漆工程078 马来漆工程069
马来漆工程069 马来漆工程065
马来漆工程065 马来漆工程061
马来漆工程061 马来漆工程060
马来漆工程060 马来漆工程051
马来漆工程051 马来漆工程036
马来漆工程036 马来漆工程034
马来漆工程034 马来漆工程031
马来漆工程031 马来漆工程028
马来漆工程028 马来漆工程001
马来漆工程001 马来漆工程002
马来漆工程002 马来漆工程003
马来漆工程003 马来漆工程004
马来漆工程004 马来漆工程005
马来漆工程005 马来漆工程006
马来漆工程006 马来漆工程007
马来漆工程007 马来漆工程008
马来漆工程008 马来漆
马来漆 仿石材
仿石材 艺术漆
艺术漆 液体壁纸
液体壁纸 肌理漆
肌理漆 荧光壁画
荧光壁画 质感涂料
质感涂料 特殊漆
特殊漆 彩石漆
彩石漆 进口涂料
进口涂料 金银箔
金银箔 墙体塑石
墙体塑石 艺术帛
艺术帛 艺术地坪
艺术地坪